2025
224τ.μ.
-1
3
3
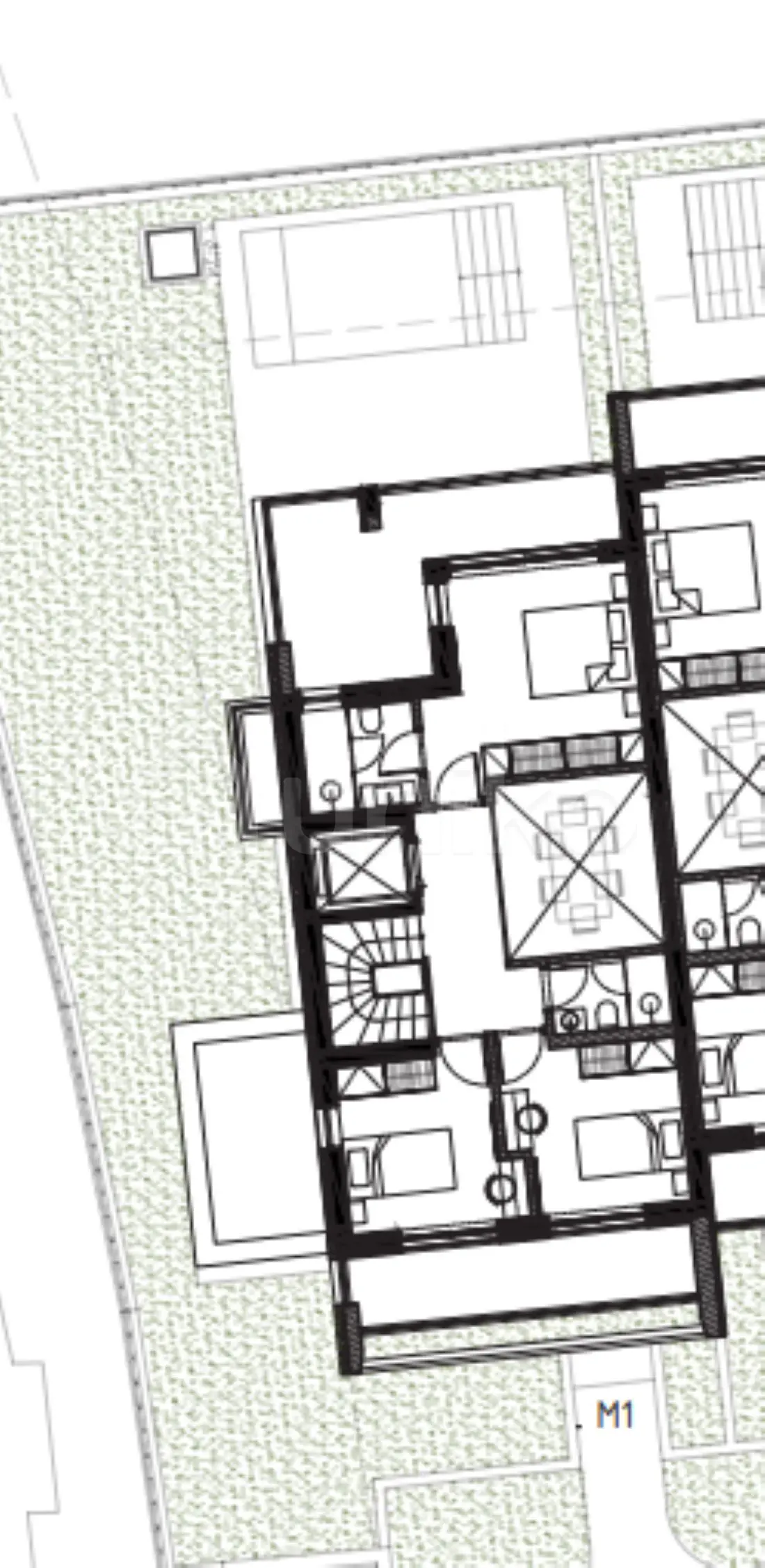
Η μεζονέτα 224,08 τ.μ. αναπτύσσεται σε υπόγειο, ισόγειο και πρώτο όροφο, σε συγκρότημα υπό κατασκευή στα Μελίσσια με αποπεράτωση το 2027, αποτελούμενο από 2 τετραώροφες πολυκατοικίες και 4 διώροφα κτίρια (8 μεζονετών). Το υπόγειο 80,59 τ.μ. περιλαμβάνει βοηθητικό χώρο, μπάνιο, αποθήκη, ιδιωτικό ανελκυστήρα και θέση στάθμευσης. Το ισόγειο 76,88 τ.μ. διαθέτει ενιαίο καθιστικό-τραπεζαρία με κουζίνα, WC και τρεις ημιυπαίθριους χώρους. Ο πρώτος όροφος 66,61 τ.μ. φιλοξενεί τρία υπνοδωμάτια, δύο μπάνια, WC και τρία μπαλκόνια. Η μεζονέτα συνοδεύεται από αποκλειστική χρήση κήπου 194,70 τ.μ. και ιδιωτική πισίνα, προσφέροντας υψηλό επίπεδο ιδιωτικότητας. Το έργο εκτείνεται σε καταπράσινη έκταση 5,4 στρεμμάτων, δίπλα σε άλση και πάρκα, με σύγχρονη αρχιτεκτονική, άπλετο φυσικό φως και ενεργειακή απόδοση Α. Παρέχονται θερμοπρόσοψη, αντλία θερμότητας για ενδοδαπέδια θέρμανση και για σύστημα ψύξης με fancoils, ενεργειακά κουφώματα, πυρανίχνευση, προεγκατάσταση συναγερμού, θωρακισμένη πόρτα και φορτιστής ηλεκτρικού οχήματος. Το ακίνητο είναι διαθέσιμο στο Uniko, τον νέο, απόλυτο προορισμό για αγοραπωλησίες ακινήτων στην Ελλάδα, με την αξιοπιστία της Εθνικής Τράπεζας. Μάθε περισσότερα για το ακίνητο παρακάτω.
- Ζητούμενη τιμή
- 930.000 €
- Δωμάτια
- 3
- Τιμή ανά τ.μ.
- 4.151,79 €/τ.μ.
- Εμβαδόν
- - τ.μ.
- Αποθήκη
- Ναι
- Μπάνια
- 3
- Συνολική επιφάνεια αποθηκευτικού χώρου
- - τ.μ.
- Τύπος θέρμανσης
- Αντλία θερμότητας
- Εμβαδόν ακινήτου
- 224 τ.μ.
- Ενεργειακή απόδοση
- A
- Xώρος στάθμευσης
- 1
- Έτος κατασκευής
- 2025
- Ανελκυστήρας
- Πόρτα ασφαλείας
- Κήπος
- Πισίνα
- Εσωτερική σκάλα
Άλλαξε τις επιλογές για να δεις πώς επηρεάζουν τη μηνιαία δόση σου.



























