2025
243τ.μ.
-1
3
2
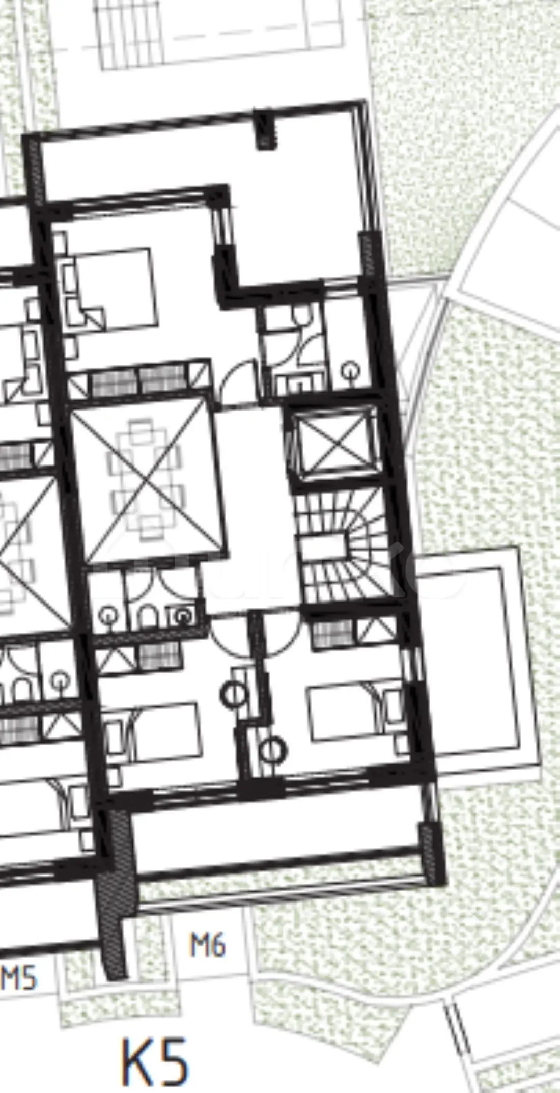
Μεζονέτα 243,15τμ αναπτύσσεται σε υπόγειο, ισόγειο και πρώτο όροφο, σε συγκρότημα υπό κατασκευή στα Μελίσσια με αποπεράτωση το 2027, αποτελούμενο από 2 τετραώροφες πολυκατοικίες και 4 διώροφα κτίρια (8 μεζονετών). Το υπόγειο, 99,78τμ, περιλαμβάνει ενιαίο βοηθητικό χώρο, WC, αποθήκη, ιδιωτικό ανελκυστήρα και δύο θέσεις στάθμευσης. Το ισόγειο, 76,76τμ, διαθέτει καθιστικό-τραπεζαρία με ενιαία κουζίνα, WC και τρεις ημιυπαίθριους χώρους. Ο πρώτος όροφος, 66,61τμ, περιλαμβάνει τρία υπνοδωμάτια, δύο μπάνια και τέσσερα μπαλκόνια. Η μεζονέτα προσφέρει αποκλειστική χρήση κήπου 102,11τμ και ιδιωτική πισίνα. Το ακίνητο βρίσκεται σε ένα πρωτοποριακό συγκρότημα μέσα σε καταπράσινη έκταση 5,4 στρεμμάτων, λίγα λεπτά από το Άλσος Ολυμπιονικών και το Πάρκο Πτέρυγας Τσαγκάρη. Σύγχρονη αρχιτεκτονική, φυτεμένοι κήποι, υδάτινα στοιχεία και έξυπνος προσανατολισμός συνθέτουν μια υψηλού επιπέδου εμπειρία κατοίκησης. Κτήριο ενεργειακής κλάσης Α, με θερμοπρόσοψη, αυτόνομη αντλία θερμότητας για ενδοδαπέδια θέρμανση και για σύστημα ψύξης με fancoils, ενεργειακά κουφώματα, πυρανίχνευση, προεγκατάσταση συναγερμού, θωρακισμένη πόρτα και δυνατότητα φόρτισης ηλεκτρικού αυτοκινήτου σε κάθε θέση στάθμευσης. Το ακίνητο είναι διαθέσιμο στο Uniko, τον νέο, απόλυτο προορισμό για αγοραπωλησίες ακινήτων στην Ελλάδα, με την αξιοπιστία της Εθνικής Τράπεζας. Μάθε περισσότερα για το ακίνητο παρακάτω.
- Ζητούμενη τιμή
- 890.000 €
- Δωμάτια
- 3
- Τιμή ανά τ.μ.
- 3.662,55 €/τ.μ.
- Εμβαδόν
- - τ.μ.
- Αποθήκη
- Ναι
- Μπάνια
- 2
- Συνολική επιφάνεια αποθηκευτικού χώρου
- - τ.μ.
- Τύπος θέρμανσης
- Αντλία θερμότητας
- Εμβαδόν ακινήτου
- 243 τ.μ.
- Ενεργειακή απόδοση
- A
- Xώρος στάθμευσης
- 2
- Έτος κατασκευής
- 2025
- Ανελκυστήρας
- Πόρτα ασφαλείας
- Κήπος
- Πισίνα
- Εσωτερική σκάλα
Άλλαξε τις επιλογές για να δεις πώς επηρεάζουν τη μηνιαία δόση σου.
























