2026
70τ.μ.
0
2
1
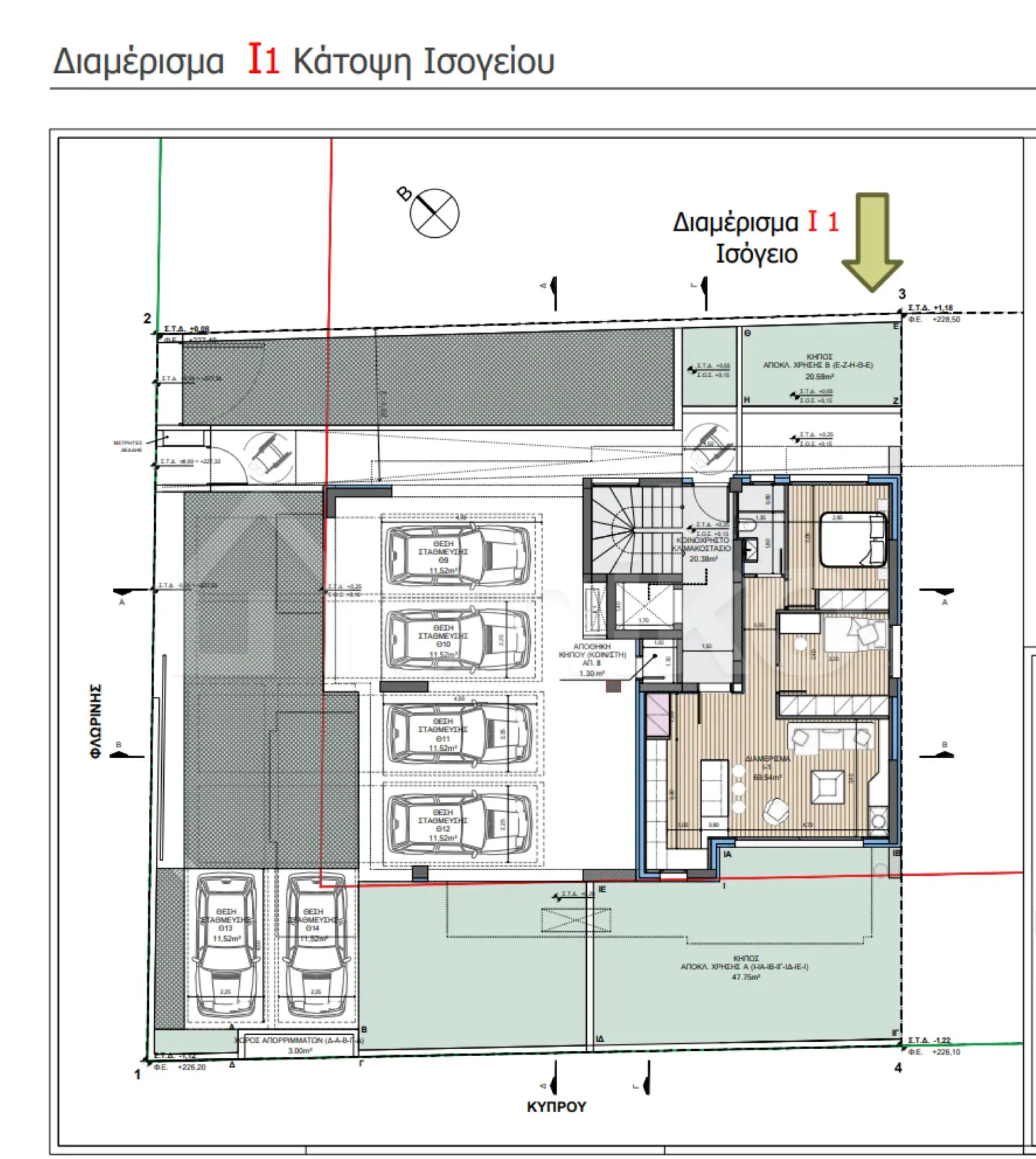
Υπό κατασκευή ισόγειο διαμέρισμα 70 τ.μ. στα Βριλήσσια, με ιδιωτικό κήπο αποκλειστικής χρήσης 69,54 τ.μ., σχεδιασμένο για να προσφέρει σύγχρονη αισθητική, λειτουργικότητα και υψηλή ενεργειακή απόδοση. Το ακίνητο θα διαθέτει δύο υπνοδωμάτια, ένα μπάνιο και ένα WC, αποθήκη και δύο θέσεις στάθμευσης, μία υπόγεια και μία υπαίθρια. Η κατασκευή πραγματοποιείται με οικοδομικό σκελετό από σκυρόδεμα C25/30, προηγμένη αδιάβροχη δομή και στατική μελέτη υψηλών προδιαγραφών, ενώ η ράμπα θα διαθέτει αντιπαγωτική προστασία με θερμαινόμενα καλώδια NEXANS. Το διαμέρισμα θα ενσωματώνει σύστημα Smart Home για έξυπνη διαχείριση βασικών λειτουργιών, εξασφαλίζοντας άνεση και εξοικονόμηση ενέργειας. Παρέχεται η δυνατότητα προσαρμογής της εσωτερικής διαρρύθμισης και των επιμέρους επιλογών, σύμφωνα με τις ανάγκες του αγοραστή, κατά τη φάση της κατασκευής και πριν την ολοκλήρωση του δομικού πλαισίου. Το συγκρότημα θα είναι ενεργειακής κλάσης Α+ και θα περιλαμβάνει ηλιακά πάνελ για ζεστό νερό, αντλία θερμότητας, σύστημα ενδοδαπέδιας θέρμανσης, ενεργειακό τζάκι και παροχή για φόρτιση ηλεκτρικού οχήματος. Στα ποιοτικά χαρακτηριστικά περιλαμβάνονται πιστοποιημένα, φιλικά προς το περιβάλλον υλικά, κουζίνα υψηλής αισθητικής από καταξιωμένους σχεδιαστές, πλακάκια μπάνιου ανώτερης σχεδίασης και είδη υγιεινής VENETI, ξύλινα δάπεδα μονοσανίδα 16 εκ. εκτός λουτρών, γρανιτοπλακίδια μεγάλων διαστάσεων, ντουλάπια και ντουλάπες άριστης ποιότητας και πυράντοχη πόρτα ασφαλείας. Το ακίνητο είναι διαθέσιμο στο Uniko, τον νέο, απόλυτο προορισμό για αγοραπωλησίες ακινήτων στην Ελλάδα, με την αξιοπιστία της Εθνική Τράπεζα της Ελλάδος. Μάθε περισσότερα για το ακίνητο παρακάτω.
- Ζητούμενη τιμή
- 350.000 €
- Δωμάτια
- 2
- Τιμή ανά τ.μ.
- 5.000 €/τ.μ.
- Εμβαδόν
- - τ.μ.
- Αποθήκη
- Ναι
- Μπάνια
- 1
- Συνολική επιφάνεια αποθηκευτικού χώρου
- - τ.μ.
- Τύπος θέρμανσης
- Αντλία θερμότητας
- Εμβαδόν ακινήτου
- 70 τ.μ.
- Ενεργειακή απόδοση
- A+
- Xώρος στάθμευσης
- 1
- Έτος κατασκευής
- 2026
- Πόρτα ασφαλείας
- Κήπος
- Κλιματιστικό
- Τζάκι
Άλλαξε τις επιλογές για να δεις πώς επηρεάζουν τη μηνιαία δόση σου.




