
Apartment 46sqm, Kallithea, Southern Suburbs
€180,000
Kallithea ID: 00001647
2025 5Floor
1 Bedrooms 1 Bathrooms
Property Description
Situated on the 5th floor of a newly developed building in Kallithea – Agia Eleousa, this 46 sq.m. apartment is scheduled for delivery in November 2027. It features one bedroom, a living room, kitchen, and bathroom in a smart and contemporary layout.
The property includes autonomous heating with natural gas, air conditioning, solar water heater, thermal insulation, and aluminum window frames with thermal break and double glazing. It is energy class A+ and has high-quality tile and wood flooring.
Bright, front-facing, and airy, the apartment offers pleasant cityscape views. It comes with a parking space in the pilotis and a storage room, while the building features an elevator. Additional amenities include a security door, video intercom, alarm system, disabled access ramp, sewer connection, and pet-friendly status. Ideally located near the train station, public transport, schools, supermarkets, shopping areas, and dining options.
The property is available on Uniko, the new, ultimate destination for real estate transactions in Greece, backed by the reliability of National Bank of Greece. Learn more about the property below.
Property details
Asking price
€180,000
Price per m²
€3,913 /m²
Storage room
Internal
Total storage space area
-
Total area (m²)
46 m²
Floor
5
Construction year
2025
Rooms
1
Bathrooms
1
WC
-
Heating system
Natural Gas
Energy performance
A+
Parking space
-
Features
Map area
See the property's distances from key locations
Property location
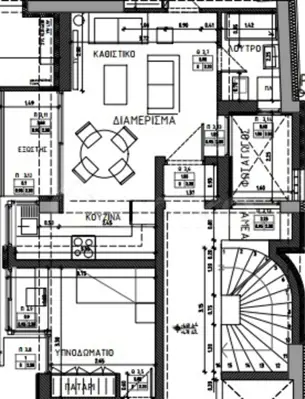
Floor plan

Services
Check out the following services that might interest you. Uniko is here to support you every step of the buying and selling process with speed and efficiency.
Estimated Costs.
Total Cost (incl. VAT).
€180,000
€180,000
Includes standard fees for a typical property transfer contract. Additional charges may apply for extra pages or copies of the notarial deed.
€1,684
Refers to the tax calculated on the property's market value, including the Property Transfer Tax (PTT) payable to the local municipality.
It is not subject to VAT.
€5,562
Contract registration fees
€1,060
The brokerage fee is mandatory when a property has been shown by a professional real estate agent and is calculated as a percentage of the property's market value.
€4,464
The Legal report service ensures the integrity of the property and safeguards your interests. The Uniko team recommends selecting this service before any property transaction.
€248
€17,683
Create a free account or sign in to view the estimated costs





