2026
122sq.m.
3
3
2
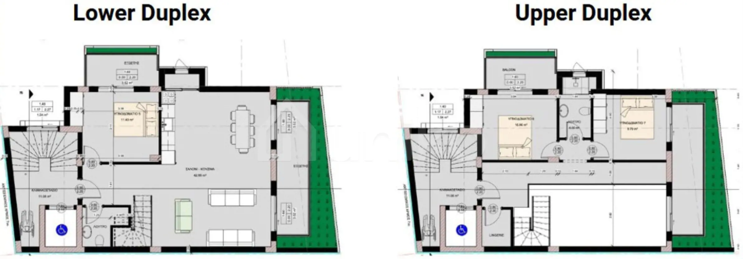
For sale, a luxurious newly built Maisonette on the 3rd and 4th floors, constructed in 2025, with energy class A+, in a prime location in Glyfada, just 4 minutes from Elliniko and 7 minutes from Glyfada beach. This Maisonette combines modern design with high construction standards, offering comfort and quality living. The Maisonette is an excellent choice for both owner-occupation and investment. Arranged over two levels, it features a bright living area, modern kitchen, three bedrooms, two bathrooms, a 33 sq.m. veranda, a 13 sq.m. storage room and one parking space. It is equipped with a Fan Coil system, air conditioning, and a solar water heater, and benefits from proximity to shops, schools, public transport and the Elliniko Metropolitan Park. The property is available on Uniko, the new ultimate destination for real estate transactions in Greece, backed by the reliability of the National Bank of Greece. Learn more about the property below.
- Asking price
- €920,000
- Rooms
- 3
- Price per m²
- €7,540.98/sq.m.
- Area
- - sq.m.
- Storage
- Yes
- Bathrooms
- 2
- Total storage space area
- 13 sq.m.
- Heating type
- Heat Pump
- Property Area
- 122 sq.m.
- Energy class
- A+
- Parking
- 1
- Construction year
- 2026
- Elevator
- Security door
- Air condition
Adjust your selections to see how they affect your monthly installment.






